広さの例
2畳タイプ
約3.65㎡
900,000 yen~
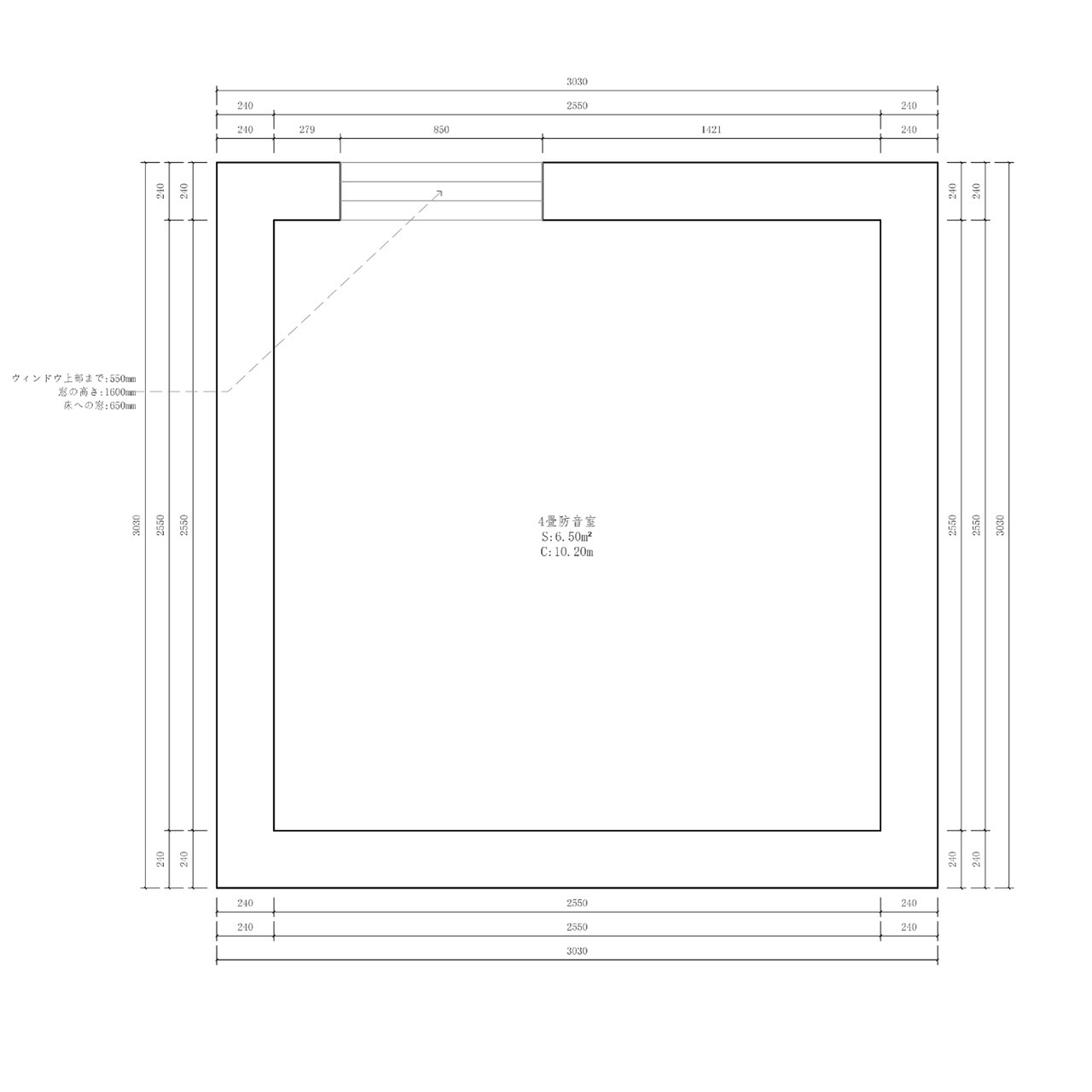
4畳タイプ
約6.5㎡
1,500,000 yen~
8畳タイプ
約9.73㎡
要相談
音のプロによる設計
声楽家であり大工でもあるプロが設計を担当。音楽家の感性と大工の技術を融合し、理想的な防音空間を提供します。
カスタムオーダー
扉や照明、コンセント位置の変更を追加料金なしで対応。事前相談を通じ、設置場所や用途に合わせた間取り変更も可能です。
セルロースファイバー工法
リサイクル紙由来のセルロースファイバーを使用。防音・断熱・耐火・吸湿効果を発揮し、快適で高性能な空間を実現します。
大工による施工
経験豊富な大工が一つひとつ丁寧に施工。専門技術を活かし、細部までこだわった高品質な防音室を作り上げます。
コストパフォーマンス
製造から施工、販売まで自社一貫体制で運営。中間コストを削減し、高品質な防音室を適正価格で提供します。




